Vortex House
Malibu, California
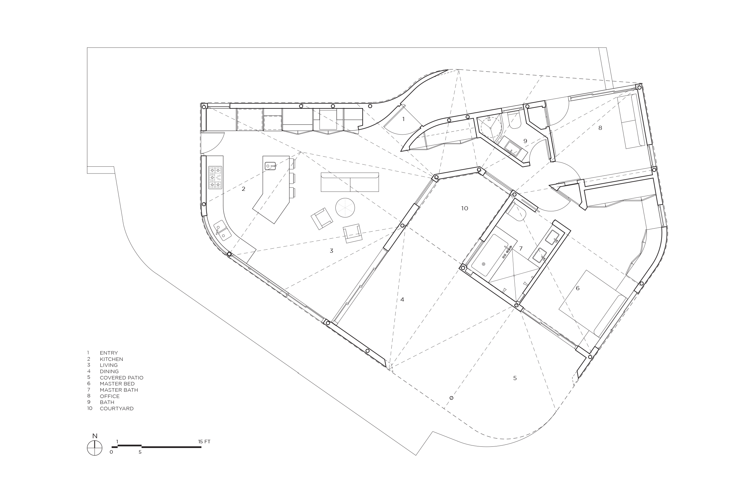
The project’s ambition lies in its dramatic spatial modulation and the saturation of its interior with the visual and geometric material of the surrounding site. Rather than understanding the views as a way to release the interior to the exterior, the surrounding geometric and topographic features are drawn into the interior to condition its atmosphere. Artificial and natural geometries are characterized as of the same fluid medium, and the house is a vortex into which this material is drawn. This ambition shapes each part of the house’s organization: a five-sided sculpted massing, a folded roof plane, an exterior wrapper, and a covered patio.
murmur: Heather Roberge
Photos © Benny Chan, Fotoworks
The project’s ambition lies in its dramatic spatial modulation and the saturation of its interior with the visual and geometric material of the surrounding site. Rather than understanding the views as a way to release the interior to the exterior, the surrounding geometric and topographic features are drawn into the interior to condition its atmosphere. Artificial and natural geometries are characterized as of the same fluid medium, and the house is a vortex into which this material is drawn. This ambition shapes each part of the house’s organization: a five-sided sculpted massing, a folded roof plane, an exterior wrapper, and a covered patio.
murmur: Heather Roberge
Photos © Benny Chan, Fotoworks























©2025
murmur